|
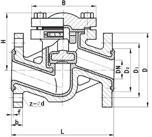
H41F升降式襯氟止回閥概述: H41F升降式襯氟止回閥是能自動阻止流體倒流的閥門,止回閥的閥瓣在流體壓力作用下開啟,流體從進口側流向出口側;當進口側壓力低于出口側時,閥瓣在流體壓差、本身重力等因素作用下自動關閉以防止流體倒流。專用于控制腐蝕性或強腐蝕性介質,閥體內腔表面覆有可供選擇的各種氟塑料,具有強度高、耐腐蝕性能好的特點,適用于不同工作溫度和流體管路,防止各類管路或設備上的介質逆流的單向閥。 止回閥的啟閉件靠介質流動和力量自行開啟或關閉,以防止介質倒流。止回閥一般分為升降式、旋啟式、蝶式及臥式等四種類型,通式升降式止回閥應安裝于水平管路上,立式升降式止回閥和底閥一般安裝在垂直管路上,并且介質自下而上流動,旋啟式止回閥安裝位置不受限制,通常安裝于水平管路,但也可以安裝于垂直管路或傾料管路上。注意:止回閥只允許介質向一個方向流動,應特別注意介質流動方向,應使介質正常流動方向與閥體上指示的箭頭方向相一致,否則就會截斷介質的正常流動。 H41F升降式襯氟止回閥參數: 公稱通徑:DN15-DN300 公稱壓力:1.6Mpa-2.5Mpa 適用溫度:-10℃~180℃ 適用介質:酸、堿、鹽、王水、有機酸等強腐蝕性介質 閥體材質:鑄鐵、鑄鋼、碳鋼 連接方式:法蘭連接 設計標準:GB 12236 結構長度:GB 12221 檢驗試驗:GB/T13927 法蘭標準:JB/T79-94;GB 9113.1-26 H41F升降式襯氟止回閥特性:可用在強腐蝕性介質上起到止回作用,防止介質倒流。 H41F升降式襯氟止回閥尺寸: ![]() H41F升降式襯氟止回閥主要連接外形尺寸:
注:此外形尺寸為1.6Mpa壓力止回閥,如需更高壓力尺寸圖紙,敬請來電來函咨詢。 升降式襯氟止回閥為直通式結構,襯氟閥瓣垂直于管路軸線作升降運動。采用特殊模壓工藝,將氟塑料襯于閥體殼體內壁,能耐強酸、強堿的腐蝕,流道光滑、密封性好、零泄漏。此閥門為自動閥門,啟逆止作用,水平安裝于工業管道中。 |
-
流道光滑、密封性好、零泄漏。
-
有可供選擇的各種氟塑料,具有強度高、耐腐蝕性能好的特點
-
可用在強腐蝕性介質上起到止回作用,防止介質倒流。
-
啟閉件靠流動介質的壓力來實現自動開啟或關閉。
-
酸、堿、鹽、王水、有機酸等強腐蝕性介質
-
根據用戶提供的流量、壓力提供選型規格書及控制方案圖。


